NEW

宮古ブルーの大海原を眺め、 心ゆるまるひとときを。

AYANNA Miyako

NEW
AYANNA Miyako画像
場所 / エリア 沖縄県
商品番号 OTA177
基本情報
プラン
お部屋
お食事
アクセス
写真
チェックIN
15:00
チェックOUT
11:00
設備・
サービス
駐車場 × 大浴場 × サウナ × 温泉 × 露天風呂 × 貸切風呂 × ビジネス × フィットネス × 売店 × ゲーム × ペット同伴 × 手話対応 × 車椅子貸出 車椅子対応トイレ ベビーベット貸出 × ベビーコット貸出 ベッドガード貸出 × ベビーカー貸出 × Edy利用 ルームサービス ランドリー × コピーサービス × コインランドリー × FAXサービス × 送迎サービス × 宅配サービス × ベビー・キッズルーム
客室設備・
アメニティ
歯ブラシ かみそり タオル ヘアドライヤー × 浴衣 ナイトウェア × 加湿器 温水洗浄便座 暖房便座 × ズボンプレッサー インターネット 無線インターネット × 貸出PC テレビ × ケーブル/衛星放送 冷蔵庫 トイレ シャンプー リンス ボディーシャンプー バスローブ 空調
施設説明
宮古ブルーの大海原が目の前に広がるたった7室だけオールスイートヴィラ。
温暖な地域で育まれた亜熱帯植物をはじめ、 ゲストルームに差し込む太陽の光に包み込まれたかのような自然に寄り添った心ゆるまる滞在をお楽しみください。
注意事項
ホテル隣接地において工事が予定されております。
期間中(月~土 9:00~17:00)は、作業に伴う騒音・振動や工事車両の出入りが発生する場合がございます。
ご滞在中のお客様にはご不便をおかけいたしますが、何卒ご理解いただけますと幸いです。
【期間】2026/3/20~2026/10/31、2027/1/6~2027/2/28
空室状況
◀ 前月 2026年 03月 次月 ▶
ご注意・
ご案内
〇本契約はお客様と宿泊施設が締結する宿泊約款に基づく契約となります。
〇インターネット専用商品のため、営業所、トラベルサロン、代理店等ではご予約いただけません。
〇ご予約は、「宿泊プラン利用規約」が適用となります。お申込み前に必ずご覧ください。
〇特に記載がない限り、表示された料金は消費税・サービス料を含む料金です。
〇入湯税・地方諸税等が現地にてお支払いいただく場合がございます。
〇こども料金0円でも施設使用料等が現地にてお支払いいただく場合がございます。
〇掲載写真は、宿泊施設から提供された画像です。食事・客室等の写真は一例です。
〇掲載プランでも満室時の場合には、ご予約時にプランが表示されません。
取消料
14日前:宿泊料金の20%
7日前:宿泊料金の30%
前日:宿泊料金の50%
当日:宿泊料金の100%
不泊・連絡なし:宿泊料金の100%

※上記以外のお取消し無料期間内は、当社会員サイトからオンライン予約取消しが可能です。
※それ以降の予約取消しを希望の方は、AYANNA Miyako(0980-79-8090)までご連絡ください。

厳選された沖縄食材を使ったこだわりの朝夕2食付きプラン

食事内容
夕・朝食付き
宿泊料金
2名1室(お1人さま宿泊料金の目安)
53,000〜130,000円(税込)
チェックIN
15:00 〜21:00
チェックOUT
11:00
取消料期間
14日前

プライベートヴィラでゆったり過ごす朝食付きプラン

食事内容
朝食付き
宿泊料金
2名1室(お1人さま宿泊料金の目安)
33,000〜110,000円(税込)
チェックIN
15:00 〜21:00
チェックOUT
11:00
取消料期間
14日前

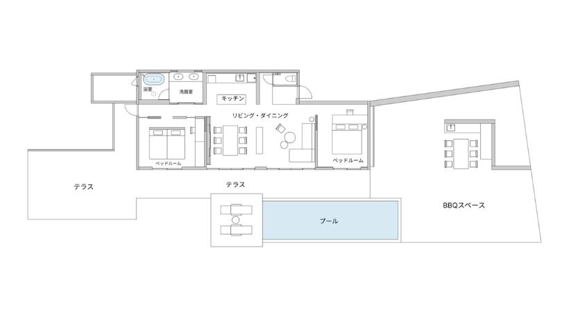
エグゼクティブ スイート

広さ
227.5㎡(客室93.4㎡+テラス101.5㎡+プール32.6㎡)
定員
6名
特徴
2ベッドルームに開放的なリビング・ダイニングがあるゲストルームです。
特にリビング・ダイニングにある開放的な窓から宮古ブルーの大海原を一望しながら波の静けさをお楽しみいただけます。プライベートプール、BBQエリア付きテラスがあり、心地よい海風に揺られながら開放的で自然を感じる体験をご堪能ください。

サウナスイート

広さ
153㎡(客室88.8㎡+テラス44.4㎡+プール19.8㎡)
定員
6名
特徴
2ベッドルームに広々としたダイニングリビングがあるゲストルーム。プライベートプールのあるテラスにはサウナと水風呂があります。心地よい海風に揺られながら、思う存分サウナをお楽しみいただけます。
アヤンナ宮古島で採れた自家製ハーブを用いたロウリュや水風呂で本格的なサウナの醍醐味を味わえます。宮古島のハーブの香りに包まれながら、海風に揺られる極上のととのい体験を存分にお楽しみください。

ジュニアスイート

広さ
108.6㎡(客室59.2㎡+テラス29.6㎡+プール19.8㎡)
定員
3名
特徴
1ベッドルームにリビングとプライベートプールテラスが付いたゲストルーム。バスルームからも宮古ブルー海が見えるほか、南向きの窓からは心地よい朝日が差し込み、自然を感じる朝も体験いただけます。

ブレックファースト

営業時間
7:30-9:30
特徴
一日のはじまりを、ゆったりと贅沢に。沖縄の旬の食材を取り入れた、南国らしさあふれる朝食をお楽しみいただけます。
お食事はお部屋でごゆっくりとお召し上がりいただけますので、プライベートな空間で、心ゆくまで寛ぎのひとときをお過ごしください。

ランチ

営業時間
11:30-13:30(L/O)14:30
特徴
ランチでは、宮古島産の車海老と島野菜を使用したココナッツカレーと、宮古牛100%の特製ハンバーガーをご用意しております。
ココナッツカレーは、ココナッツの器で仕上げた南国らしい一皿。ココナッツのまろやかなコクと車海老の旨味が重なり、島野菜とともにお楽しみいただけます。
ハンバーガーは、つなぎを使わず旨味を引き出した宮古牛のパティをミディアムで焼き上げ、地元ベーカリー特製の胚芽入りバンズと合わせました。
宮古島の風景に寄り添う、穏やかなひとときをお届けします。

ディナー

営業時間
17:30〜
特徴
シェフが厳選した、沖縄の自然に育まれた食材を用い、その時々の恵みを丁寧に重ねた、心に残る食のひととき。旬の味覚を生かしたコース料理を通して、宮古島の大自然の恵みを感じながら、贅沢な時間をご堪能ください。

エグゼクティブ スイート限定BBQコース

特徴
エグゼクティブスイートの約50㎡のテラスで楽しむ、プライベートセルフバーベキュー。食のコミュニケーションを楽しむ至福の時間を満喫できます。宮古島の新鮮な野菜やお肉、シーフードなど、贅沢なフルコースをお楽しみいただけます。

大人1名:20,000円(税込)
子供1名:10,000円(税込)

※ジュニアスイート、サウナスイートでの宿泊の場合はご利用できません。
※食材のお持ち込みはご遠慮いただいております。

ワインのこだわり

特徴
宮古島の豊かな自然に囲まれたアヤンナ宮古島でお楽しみいただけるのは、地球環境や健康に配慮し、心身ともにリフレッシュできるナチュールワイン(自然派ワイン)。
フランス、イタリア、スペインを中心に、世界の銘醸地から厳選した75種類のワインを取り揃えています。それぞれのワインが持つ独自のストーリーや風味が、アヤンナ宮古島での特別なひとときをさらに彩ります。
住所
〒906-0000宮古島市伊良部池間添1130
電話番号
マップ
移動手段
交通機関 利用路線 下車場所 交通手段・時間
飛行機 宮古空港 車25分
飛行機 下地島空港 車10分
部屋
施設
周辺・景観